Skip to content

woodWOP 8.0: New functions and infinite options!

The new version of the HOMAG CNC programming system offers even better operation, new wizards and extended functions

  • Experience the latest generation of the HOMAG CNC programming system with its new memory format. You will get an overview of further improvements and expansions.

    Please confirm that when you use YouTube, data such as your IP address, browser identifier and similar may be transmitted to Google.


    » Privacy Policy

That's new in woodWOP 8.0:

Back to List

Related News

Elements such as mathematical functions, variables and conditions are available for the user for assembling his formulas.

  ·   woodWOP

Formula Editor – Display complex formulas easily and clearly

3D display of aggregates in woodWOP

  ·   woodWOP

Visualization of aggregates in 3D

New, interactive element for workpiece viewing - the woodWOP navigation cube

  ·   woodWOP

Navigation cube (ViewCube)

Mass changes of parameters in woodWOP 8

  ·   woodWOP

Mass changes of parameter values

For example, for circles, L-shapes or other curved components, template files will be stored in the contour wizard in the future.

  ·   woodWOP

The contour wizard - workpiece programming made easy

Simplified condition thanks to form view and additional auxiliary graphics in the extended variable table.

  ·   woodWOP

Extended variable table

Parameter sets for CAM macros allow faster programming

  ·   woodWOP

Parameter sets for CAM macros

New operating aid: visualization of the active selection mode

  ·   woodWOP

Visualization of the active selection mode

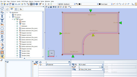
All work steps for edge banding are generated automatically after defining the contours and corners.

  ·   woodWOP

The gluing wizard for efficient programming for edge banding

TechEdit - the intuitively operated technology database supports e.g. edge banding on CNC machines

  ·   woodWOP

TechEdit - the new intuitive technology database

Feature recognition now also identifies grooves and rectangular pockets

  ·   woodWOP

Advanced feature detection

New CAD function in woodWOP 8 "Divide"

  ·   woodWOP

New CAD function "Divide"

The MPRXE memory format shows its power rating especially with large and complex programs

  ·   woodWOP

New MPRXE storage format

Clear and comfortable: when selecting the tool, it is now possible to filter by geometry type

  ·   woodWOP

Tool selection with filter option according to geometry types

Fast, comfortable selection of the contour

  ·   woodWOP

Contour selection easy and comfortable

Upcoming Events

WEINMANN Treff 2025

WEINMANN Treff

St. Johann-Lonsingen, Germany

2025/11/12 - 2025/11/13

woodWOP 9 - CNC Programmiersoftware von HOMAG

Live Webinar – woodWOP 9

2025/11/26 - 2025/11/26

IHF - International Wood Construction Conference

Innsbruck, Austria

2025/12/03 - 2025/12/05

Event & Fairs with WEINMANN

International Wood Construction Conference

Innsbruck, Austria

2025/12/03 - 2025/12/05